Дизайн-Студия VL arte
Ваш личный архитектор-дизайнер
Главная
Портфолио
Обо мне
Услуги
Арт-инфо
Контакты
+7 (963) 755 4411
Submit
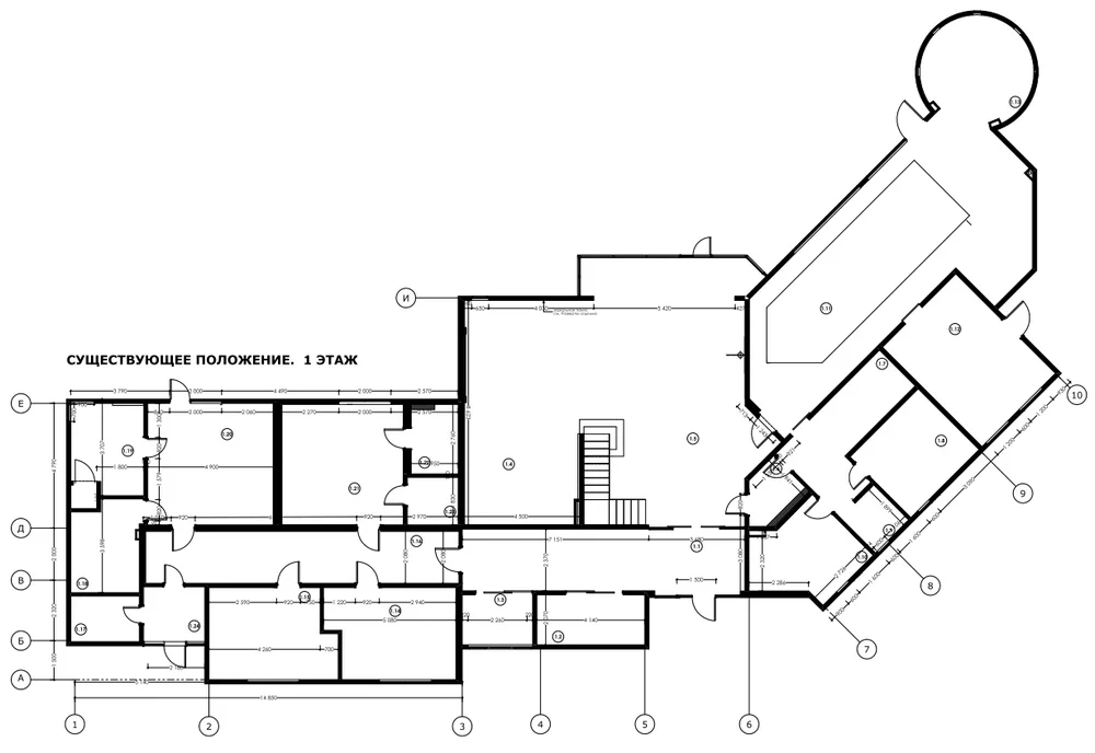
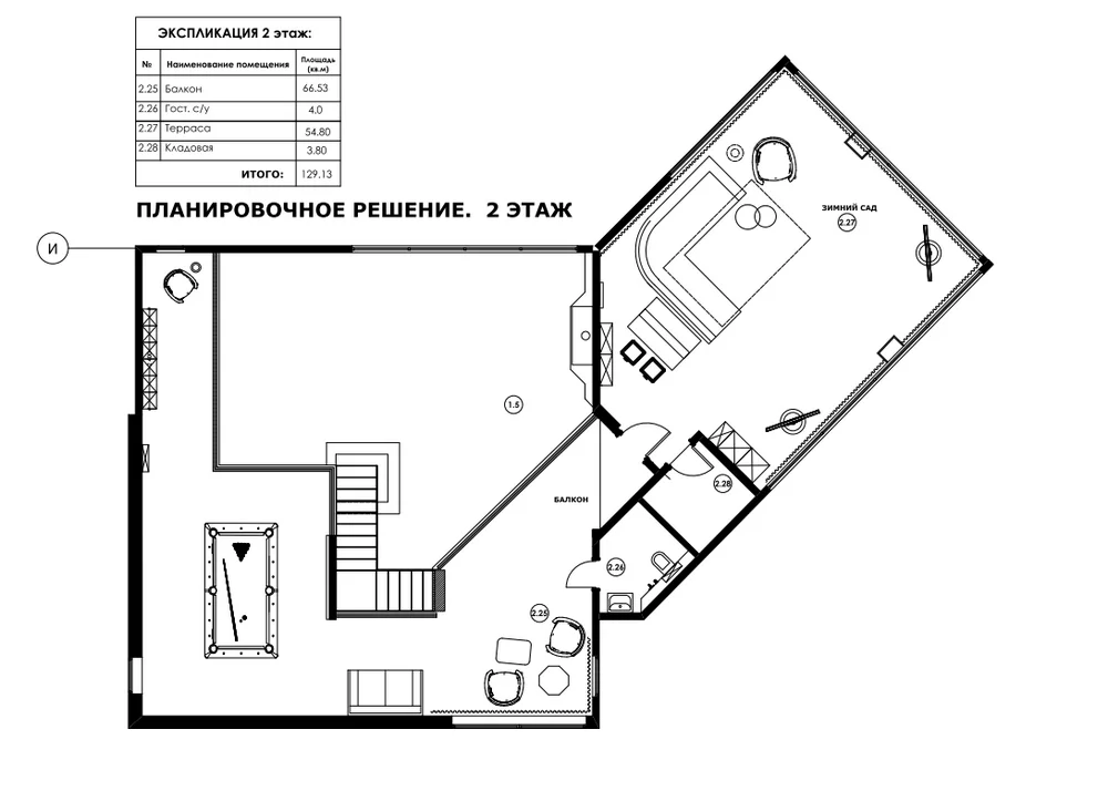
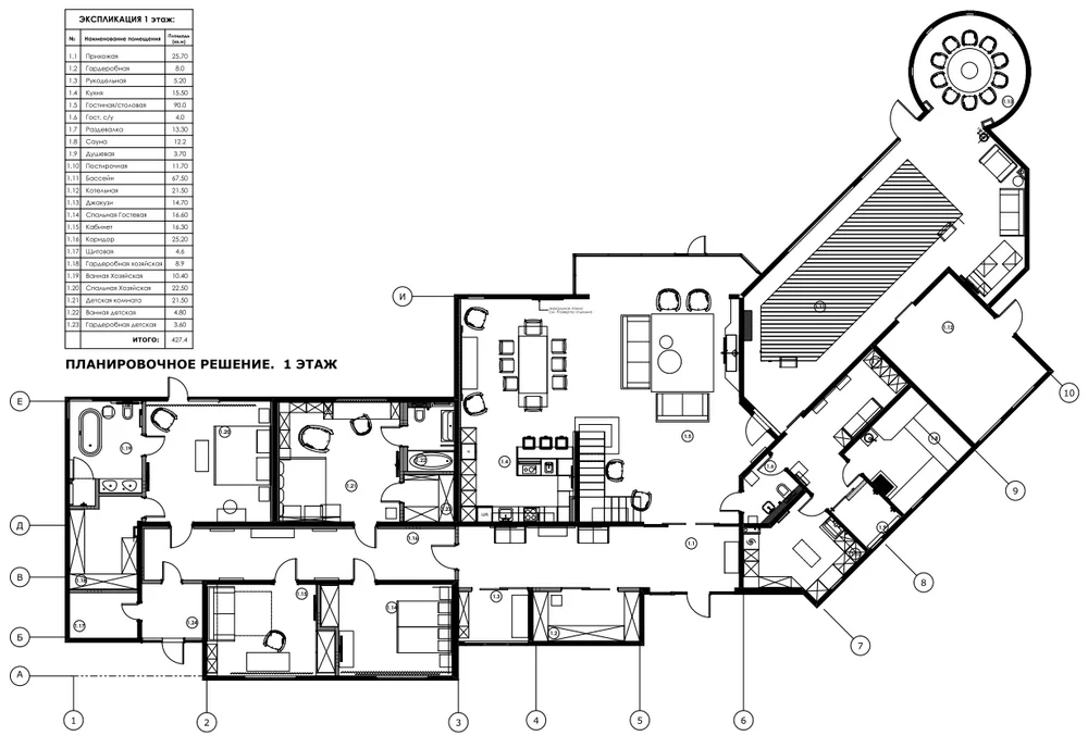
Архитектурный дуэт дерева и камня
ГОРОД/ГОД:
Карелия, 2025 г.
Площадь:
556,5 кв/м
Предыдущий
Все проекты
Следующий